Såld

675 000 kr

Hökvägen 6

Snabbfakta

  • Utgångspris
    595 000 kr
  • Antal rum
    0 ROK
  • Boarea
    95 kvm
  • Tomt
    528 kvm

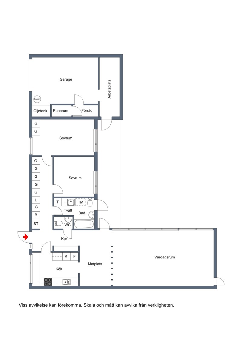
Praktiskt 1-planhus

Ett välplanerat 1-planshus med avskilda delar i huset för olika behov och umgänge. I ena flygeln avskilt placerat ligger 2 sovrum samlade kring badrummet och i den andra hittar vi köket samt vardagsrummet som präglas av en stor och öppen umgängesel som ger kontakt med trägården. Vardagsrummets fönster är stora och ger ett vackert ljusinsläpp.

Friliggande villa

95kvm

Friköpt

0 rum

528 kvm

595 000 kr - Utgångspris

Kedjehus

1967

Tegel

Trä

Kopplade 2-glas

Pulpettak, Papp

Självdrag

Fjärrvärme

Kommunalt vatten året om. Kommunalt avlopp

Lammhult 32:3

Utförd 8/12/2020

139 kWh/kvm per år

E

Hökvägen 6

Växjö

Lammhult

Lammhult

528 kvm

220, Småhusenhet, bebyggd

2018

292 000 kr

232 000 kr

60 000 kr

3st om totalt 242 700 kr

Stadsplan Tomtindelning

11 944 kr/år

3 700 kr/år

4 195 kr/år

19 839 kr

2

Driftkostnad enligt schablon. Bör endast ses som en uppskattning.

Demir Dzemailovski

Ansvarig mäklare

Intresseanmälan

Läs mer här.


This site is protected by reCAPTCHA and the Google Privacy Policy and Terms of Service apply.