Såld

4 300 000 kr

Stocke 7

Snabbfakta

  • Utgångspris
    4 600 000 kr
  • Antal rum
    7 ROK
  • Boarea
    149.6 kvm
  • Tomt
    2783 kvm

2–planshus med sjöutsikt

2.7 m takhöjd
Sjöutsikt
Ån som rinner vid huset
HTH kök
Golvvärme på båda planen
Skattefritt i 15 år
Lantligt
Nära Växjö
Badplats i närheten
Fina promenadstråk
Familjevänligt
Bra bussförbindelser
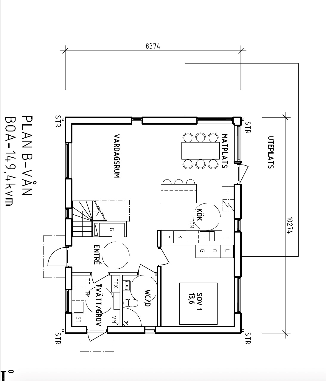
När jag annonserar det här huset har jag en större barnfamilj i tankarna, men det passar såklart lika bra för dig som bara vill ha rejält med plats. Redan när du stiger in i huset finns det en rymlig klädkammare för allas ytterkläder, wc och tvättstuga samt ett sovrum. Därefter bjuds det på stora, sociala ytor där kök och vardagsrum tar för sig på bottenvåningen. Köket är ordentligt med mycket bänk- och arbetsytor för alla tillfällen. Härlig utsikt över Helgasjön. Inte nog med det rinner ån precis vid huset. På ovanvåningen finns det fyra generösa sovrum, ett rymligt badrum och ett ljust och öppet allrum för hela familjen. Huset andas genuin snickarglädje och genomtänkta detaljer såsom takhöjd om 2.7 meter, golvvärme på båda plan, spotlights i fönstersmygarna m.m.
Här bor du lantligt, men nära Växjö.

Välkommen på visning!

Friliggande villa

149.6kvm

Friköpt

7 rum

2783 kvm

4 600 000 kr - Utgångspris

2-plansvilla

2021

Trä

Trä

3-glas

Betongpannor

Betongplatta

FTX

Frånluftsvärmepump

Enskilt Vatten. Enskilt Avlopp.

Stocke 1:12

Stocke 7

Växjö

Stocke

Växjö

2783 kvm

220, Småhusenhet, bebyggd

2021

1 633 000 kr

1 450 000 kr

183 000 kr

0st om totalt 0 kr

17 000 kr/år

5 630 kr/år

6 480 kr/år

29 110 kr

4

Driftkostnad beräknad enligt schablon (4 personer i hushållet). Bör endast ses som en uppskattning.

Budgivning pågår

Budhistorik

  • 4 300 000 kr - Budgivare 1

    2023-07-13 10:12
  • 4 100 000 kr - Budgivare 1

    2023-07-11 13:52

Demir Dzemailovski

Ansvarig mäklare

Intresseanmälan

Läs mer här.


This site is protected by reCAPTCHA and the Google Privacy Policy and Terms of Service apply.