Till salu

Fägrevägen 9

Snabbfakta

  • Utgångspris
    3 250 000 kr
  • Antal rum
    5 ROK
  • Boarea
    164 kvm
  • Tomt
    876 kvm

En modern planlösning och många sociala ytor!

Golvvärme
Välutrustat kök
Siemens vitvaror
Låg energiförbrukning
Skattefritt i 15 år
Möjlighet att sätta sin egen prägel på övervåningen
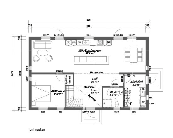
Det första ni möts av är husets hjärta – en smart och generös köksö från Ballingslöv. En perfekt plats för både snabbfrukostar, småkockar, mingel och läxläsning. På entrévåningen är planlösningen öppen, vilket ger en god överblick. Om barnen leker i trädgården hittar man dem snabbt från köket och vardagsrummet, där fönstren täcker husets alla sidor. Från köket finns även en utgång till trädgården. Vidare hittar vi ett stort badrum, tvättstuga och ett väl tilltaget sovrum på bottenvåningen. Övervåningen är oinredd. Här finns det utrymme för ytterligare ett till fem rum och ett badrum. Dessutom ger den höga takhöjden under ryggåsen möjlighet till ett sovloft eller en myshörna för barnen. Det bästa med detta huset är flexibiliteten och att huset kan förändras efter familjens olika behov.

Välkommen på visning!

1-familjs friliggande villa

164kvm

Friköpt

5 rum

876 kvm

3 250 000 kr - Utgångspris

1½-plansvilla

2023

Trä

Trä

3-glas isoler

Betongpennor

Betongplatta

FX

Kommunalt vatten året om. Kommunalt avlopp.

Furuby 2:58

Fägrevägen 9

Växjö

Furuby

Furuby

876 kvm

210, Småhusenhet, tomtmark

2022

186 000 kr

186 000 kr

1st om totalt 2 300 000 kr

Stadsplan (1980-12-15)

17 000 kr/år

5 630 kr/år

6 480 kr/år

29 110 kr

4

Driftkostnad beräknad enligt schablon (4 personer i hushållet). Bör endast ses som en uppskattning.

Benjamin Karlsson

Ansvarig mäklare

Intresseanmälan

Läs mer här.


This site is protected by reCAPTCHA and the Google Privacy Policy and Terms of Service apply.