Till salu
Vännäsberget Stickersvägen 8
Snabbfakta
-
Utgångspris495 000 kr
-
Antal rum3 ROK
-
Boarea93 kvm
-
Biarea38 kvm
-
Tomt1161 kvm
Välskött enplansvilla med tre rum och kök på lugnt läge vid Vännäsberget
Enplansvilla
Välskött enplansvilla med tre rum och kök på lugnt läge vid Vännäsberget
Välkommen till denna hemtrevliga och lättskötta villa med ett attraktivt läge på en stillsam gata, precis intill skog och natur. Här erbjuds ett praktiskt och bekvämt boende med en genomtänkt planlösning som passar såväl små familjer som par eller singelhushåll.
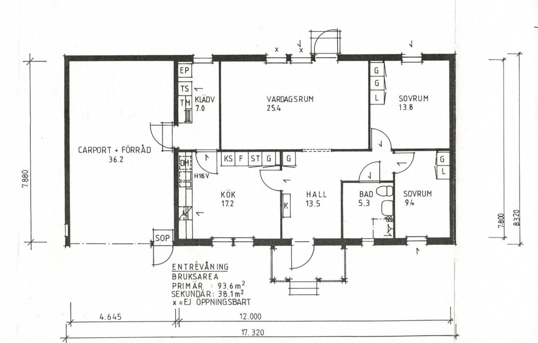
Bostaden rymmer ett rymligt och välutrustat kök, ett stort vardagsrum med utgång till baksidan, två sovrum, samt ett fräscht badrum med dusch och toalett som totalrenoverades 2018. Här finns också en generös hall och en tvättstuga för extra bekvämlighet.
På framsidan av huset möts du av en trevlig altan med soligt läge. Till fastigheten hör dessutom ett praktiskt vidbyggt kallgarage med tillhörande förråd.
Fiber är indraget ända fram till husknuten, vilket ger möjlighet till en snabb och stabil uppkoppling.
I krypgrunden finns en installerad avfuktare i förebyggande syfte.
Läget kombinerar naturnära omgivningar med närhet till service. Till centrala Överkalix, med mataffär, butiker och restauranger, är det endast cirka 7 km.
Kontakta mäklaren för visning!
Välkommen till denna hemtrevliga och lättskötta villa med ett attraktivt läge på en stillsam gata, precis intill skog och natur. Här erbjuds ett praktiskt och bekvämt boende med en genomtänkt planlösning som passar såväl små familjer som par eller singelhushåll.
Bostaden rymmer ett rymligt och välutrustat kök, ett stort vardagsrum med utgång till baksidan, två sovrum, samt ett fräscht badrum med dusch och toalett som totalrenoverades 2018. Här finns också en generös hall och en tvättstuga för extra bekvämlighet.
På framsidan av huset möts du av en trevlig altan med soligt läge. Till fastigheten hör dessutom ett praktiskt vidbyggt kallgarage med tillhörande förråd.
Fiber är indraget ända fram till husknuten, vilket ger möjlighet till en snabb och stabil uppkoppling.
I krypgrunden finns en installerad avfuktare i förebyggande syfte.
Läget kombinerar naturnära omgivningar med närhet till service. Till centrala Överkalix, med mataffär, butiker och restauranger, är det endast cirka 7 km.
Kontakta mäklaren för visning!
Information
Friliggande villa
93kvm / 38kvm
Friköpt
3 rum
1161 kvm
495 000 kr - Utgångspris
Byggnad
1-plansvilla
1989
Trä
Trä
3-glas
Betongpannor
Krypgrund - Betong
Mekanisk (endast frånluft)
Vattenburet system med elpanna
Kommunalt vatten året om. Kommunalt avlopp
Vännäs 6:20
None
Allmänt om fastigheten
Vännäsberget Stickersvägen 8
Överkalix
Överkalix
1161 kvm
220, Småhusenhet, bebyggd
2024
323 000 kr
277 000 kr
46 000 kr
2st om totalt 614 000 kr
Driftskostnader
27 735 kr/år
8 633 kr/år
4 671 kr/år
41 039 kr
1
Vattenfall
17 707
Dokument
Planritning
Vännäsberget Stickersvägen 8
Välkommen på visning
torsdag 30/10 kl 16:00 - 16:30
Boka visningFöranmälan krävs. Anmäl er gärna på hemsidan för visning.