Till salu
Timmergatan 19
Snabbfakta
-
7 500 000 kr
-
Tomt1539 kvm
Fastighet med många möjligheter
En mycket trevlig fastighet belägen på ett utmärkt läge i Åstorp.
Tidigare har fastigheten använts som HVB-hem och förskola, och den senaste hyresgästen drev ett korttidsboende för nyanlända.
På bottenplan finns idag 470 kvm som inrymmer 18 rum, 6 toaletter och badrum, ett showroom och några förrådsutrymmen.
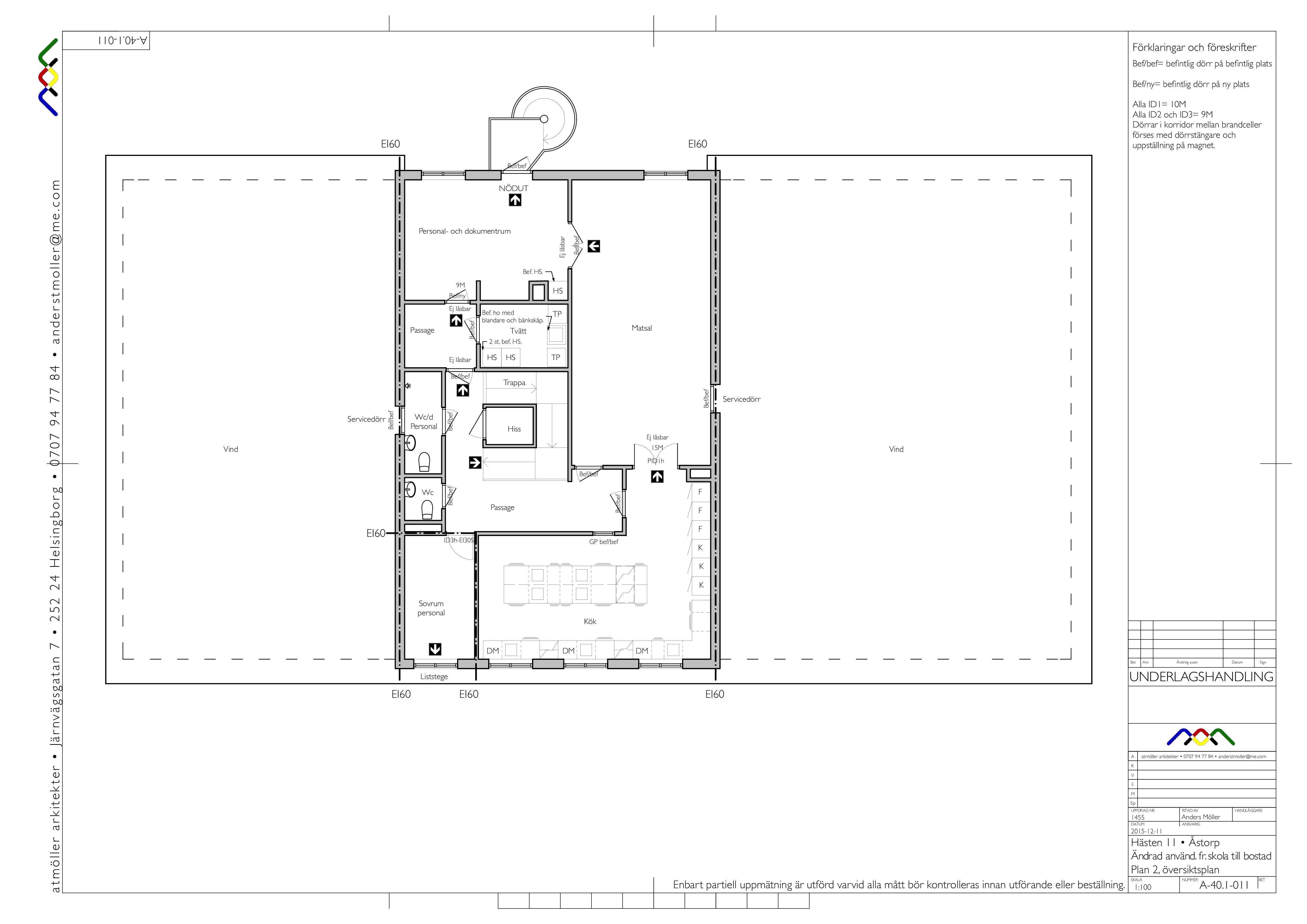
Övre plan omfattar 152 kvm fördelat på ett stort kök, matsal, personalutrymmen och ett kontor. En hiss finns mellan våningarna.
Fastigheten är 1 539 kvm stor och inkluderar ett flertal parkeringsplatser samt en mindre trädgård.
Fastigheten ligger nära både av- och påfartsvägar samt inom gångavstånd till tågstationen.
Fastigheten är klassificerad som en hyreshusenhet för lokaler med typkod 325.
Fastigheten säljs i bolagsform.
Fastigheten är tomställd vid tillträdet.
Tidigare har fastigheten använts som HVB-hem och förskola, och den senaste hyresgästen drev ett korttidsboende för nyanlända.
På bottenplan finns idag 470 kvm som inrymmer 18 rum, 6 toaletter och badrum, ett showroom och några förrådsutrymmen.
Övre plan omfattar 152 kvm fördelat på ett stort kök, matsal, personalutrymmen och ett kontor. En hiss finns mellan våningarna.
Fastigheten är 1 539 kvm stor och inkluderar ett flertal parkeringsplatser samt en mindre trädgård.
Fastigheten ligger nära både av- och påfartsvägar samt inom gångavstånd till tågstationen.
Fastigheten är klassificerad som en hyreshusenhet för lokaler med typkod 325.
Fastigheten säljs i bolagsform.
Fastigheten är tomställd vid tillträdet.
Byggnader
Byggnad
Byggnadsår: 1929
Byggnadstyp: 1½-plan
Bjälklag: Betong
Fasad: Tegel
Grund: Betongplatta
Stomme: Betong
Uppvärmning: Fjärrvärme
Tak: Betongpannor
Vatten/Avlopp: Kommunalt V/A
Fönster: 3-glas
Ekonomi
Närområdet
Tåg och buss
Taxering
7 169 000 kr
71 690 kr