Till salu
Lastgatan 11
Snabbfakta
-
ObjekttypIndustri-/verkstadslokal
-
Yta824
-
Hyra SEK / År660000
Lokal uthyres
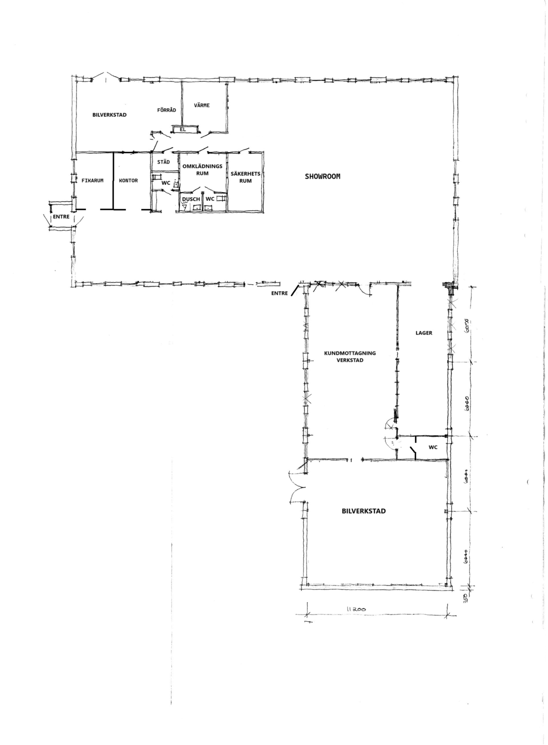
Trevlig väl-presenterad industri/handels fastighet på Filborna industriområde. Idag används fastigheten för försäljning av mopeder, mopedbilar och motorcyklar. I byggnaden finns det utställningslokal på ca 500kvm, kontor och verkstad på ca 320kvm. Det totala ytan byggd är 824kvm.
Mycket bra parkeringsmöjligheter på fastigheten och byggnaden är väl underhållen. 1998 genomfördes en renovering av alla byggnaderna.
I hyran ingår hela fastigheten inklusive ett större antal parkeringar/uppställningsplatser.
Hela fastigheten är inhägnad och det finns 2st metall grindar ut mot vägen.
Hyra: 55.000kr/månad.
Tillträde enligt överenskommelse.
Vänligen kontakta Ted Haglund på 0707-177 214 för bokning av visning av fastigheten.
Mycket bra parkeringsmöjligheter på fastigheten och byggnaden är väl underhållen. 1998 genomfördes en renovering av alla byggnaderna.
I hyran ingår hela fastigheten inklusive ett större antal parkeringar/uppställningsplatser.
Hela fastigheten är inhägnad och det finns 2st metall grindar ut mot vägen.
Hyra: 55.000kr/månad.
Tillträde enligt överenskommelse.
Vänligen kontakta Ted Haglund på 0707-177 214 för bokning av visning av fastigheten.
Information
Industri-/verkstadslokal
824 kvm
660000
Lokal
824
660000
800
Byggnad
Fjärrvärme
Mekanisk (endast frånluft)
Allmänt om fastigheten
Lastgatan 11
Helsingborg
HELSINGBORG