Till salu
Verkstadsgatan 1
Snabbfakta
-
ObjekttypButikslokal
-
Yta497
-
Hyra SEK / År670950
Denna fantastiskt belägna, helt nybyggda lokal ligger mitt i outletområdet, intill JYSK, DollarStore, Lager 157, Jem & Fix med flera. Området befinner sig i norra Höganäs.
Fastigheten är nyuppförd, och ni kommer att vara de första hyresgästerna, med ELON som granne.
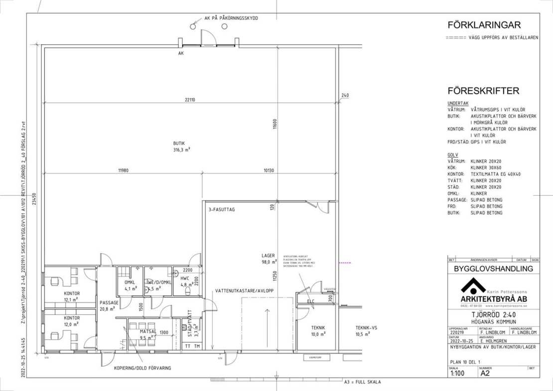
Lokalen omfattar en butiksyta på 314 kvm med en takhöjd på 9 meter, ett lager på 110 kvm med en högport på cirka 6 meter, samt en kontorsdel på 73 kvm som inkluderar två kontor, kök, toalett och omklädningsrum. Dessutom finns en separat kundtoalett i butiksdelen. Lokalen är tillgänglig för omedelbart tillträde.
Hyra: 1350kr/kvm/år.
Fastigheten är nyuppförd, och ni kommer att vara de första hyresgästerna, med ELON som granne.
Lokalen omfattar en butiksyta på 314 kvm med en takhöjd på 9 meter, ett lager på 110 kvm med en högport på cirka 6 meter, samt en kontorsdel på 73 kvm som inkluderar två kontor, kök, toalett och omklädningsrum. Dessutom finns en separat kundtoalett i butiksdelen. Lokalen är tillgänglig för omedelbart tillträde.
Hyra: 1350kr/kvm/år.
Information
Butikslokal
497 kvm
670950
Butik
314
423900
1350
Lager/Logistik
110
148500
1350
Kontor
73
98550
1350
Byggnad
Allmänt om fastigheten
Verkstadsgatan 1
Höganäs
Höganäs
HÖGANÄS