Såld

0 kr

Teknologgatan 7 C

Snabbfakta

  • Antal rum
    4 ROK
  • Boarea
    91 kvm
  • Biarea
    6 kvm
  • Avgift
    5 232 kr

Vindsetage med balkong och fungerande kakelugn belägen mot lugn gård.

Platsmonterade garderober
Fungerande kakelugn
97 Kvm total golvyta
Fina materialval
Balkong
Vindsetage
Lugnt och tyst läge
Övre plan i fil
Optimalt ljusinsläpp
Vattenburen golvvärme
Två badrum
Optimalt belägen
Nära till kommunikationer, restauranger och livsmedel
Stenkast till Tegnérlunden ,Observatorielunden och Vasaparken för härlig grönska.


I vacker sekelskiftesfastighet anno 1881 strax invid Tegnérlunden ligger denna ytterst välplanerade vindsetage om fyra rum och kök. Fungerande kakelugn och balkong på mot lugn innergård. Bostaden har smakfullt renoverats där modern design möter vackra ursprungsdetaljer såsom höga fönsterpartier, taklister och spegelmönstrade snickerier.
Ytterst tilltalande planlösning med kök, vardagsrum, badrum, Gäst-wc och balkong på nedre plan och tre sovrum med genomgående vattenburen golvvärme, påkostat badrum och bra förvaring på övre plan.

Plan 1

Hall
Välkomnande hall med svart klinkergolv och vita, målade väggar. Plats för avhängning.

Gäst WC
Gäst-wc med svart klinkergolv, vägghängd wc samt handfat.

Kök
Kök med vita högblanka luckor och bänkskivor i granit. Bardel med öppning mot vardagsrum. Gasspis (Smeg) med svart fläktkåpa, helintegrerad kyl/frys samt diskmaskin. Stor vinkyl i passage till duschrum.

Dusch
Helkaklat duschrum med golvvärme.

Vardagsrum
Vardagsrum med fungerande kakelugn och utgång till balkong. Matplats för 6-8 personer. Plats för stor soffgrupp och möblering. Inbyggd garderob samt sängskåp i nisch.

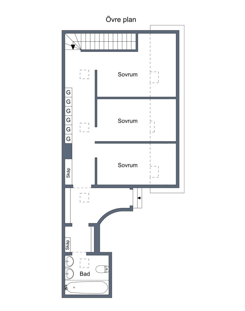
Övre Plan

Sovrum 1
Plats för dubbelsäng, platsbyggd bokhylla samt takkupa.

Sovrum 2
Används idag som Walk-in-closet. Takkupa.

Sovrum 3
Sovrum med plats för enkelsäng,samt takkupa.

Badrum
Helkaklat badrum i sober stil med svarta golvklinker och väggar. Integrerat badkar, dubbla handfat samt wc. Takbjälkar samt takfönster.

Hall
Hall plats för avhängning. I passage mot nedre plan finns platsbyggda garderober, hyllor, takfönster samt takbjälkar.
Förråd

Till lägenheten hör ett källarförråd.

Bostadsrätt

91kvm / 6kvm

Bostadsrätt

4 rum

5 232 kr/månad

Obligatorisk tillägg balkong 39 kr/mån och bredband/TV 183 kr/mån.

1301

30-1301

5.01%

5.01%

1881-82

Mekanisk (endast frånluft)

Fjärrvärme

3 / 4

Nej

3-glas

Utförd 1/1/0001

None

Teknologgatan 7 C

Stockholm

Vasastan - Norrtull

Stockholm

5 232 kr/mån

Obligatorisk tillägg balkong 39 kr/mån och bredband/TV 183 kr/mån.

4 200 kr/år

4 000 kr/år

8 200 kr

3

driftskostnaden är uträknad enligt schablon.

Brf Hoppet Astraea

Brf Hoppet Astrea är en mycket välskött äkta bostadsrättsförening med god ekonomi och låg belåning. De stora renoveringarna är redan genomförda och föreningen följer underhållsplan. Det finns inga planerade avgiftsändringar .Föreningen omfattar tre fastigheter om totalt 1890 kvm, med delvis inredda vindar och upplåter 33 stycken lägenheter med bostadsrätt. Föreningen äger marken.

UTFÖRDA RENOVERINGAR
2018 -Automatisk dörrstängare entrédörr
2017 -Fasadrenovering mot gata.
2016 -Målning av tak gathus mot gård, ombyggnad vind två mindre lägenheter 34 resp 41 kvm.
2014 -Ommålning av sophus, renovering av entrédörrar gatuhuset.
2013 -Fönsterrenovering insättning av energiglas, renovering av trapphus och entréer samt ny armatur.
2011 -Balkonger byggs, delar av vind inreds till bostäder.
2010 -Ny utrustning och ommålning i tvättstugan,
2009 -Nytt kodlås, tätning av fönster och dörrar.
2008 -Trapphusrenovering, OVK-besiktning och radonmätning.
2007 -Ny fjärrvärmecentral.
2005/06 Stambyte.
2002 -Takrenovering.
1997/98 Renovering av entréer och trapphus.
1996 -Omläggning av gården.
1986- Fasadrenovering.

Kommande renoveringar: Inte för närvarande. Föreningen följer en 20-årig underhållsplan.

Gemensamma utrymmen
- Tvättstuga i gårdshus utrustad med 2 tvättmaskiner, ett torkskåp, en torktumlare samt en mangel.- Barnvagnsrum i gårdshus. Cyklar på gården.- Innergård med utemöbler om sommaren.

Intresseanmälan

Läs mer här.


This site is protected by reCAPTCHA and the Google Privacy Policy and Terms of Service apply.